Pläne
Hier klicken für die Visualisierung des Turms als pdf Datei
Lageplan


Grundrisse und Schnitte
Ansichten:

Ostansicht: Klangschatten nach Westen

Südansicht: Klangschatten nach Norden

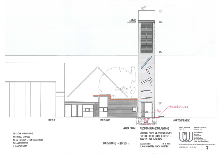
Westansicht: Klangschatten nach Osten

Nordansicht: Klangschatten nach Süden

Blick in Richtung Gartenstraße zum Kirchturm, im
Hintergrund der Wasserturm Thalenweide

Blick auf den Hof der Kath. Kirchengemeinde
Zurück Turm