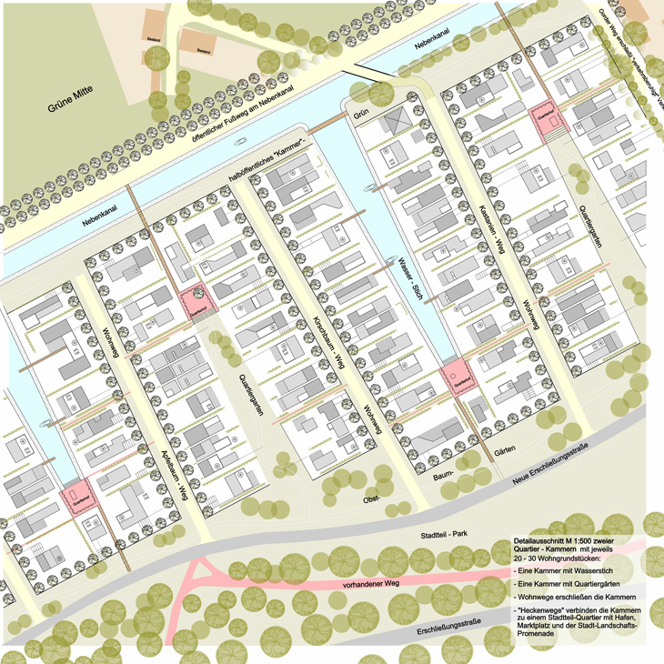
Wettbewerb, Vechtesee-Oorde in Nordhorn