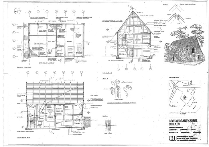
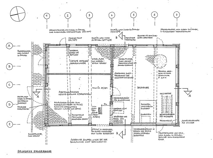
Bestandsaufnahme eines Spiekers in Groß-Garnholt